"Verkauft"Wohnparadies auf zwei Ebenen, Maisonette Wohnung mit Parkanteil
Details
Diese attraktive Maisonette-Wohnung zeichnet sich durch eine
luxuriöse und stilvolle Innenausstattung aus und kann ab dem
01.02..2026 bezogen werden. Wohnfläche/Grundfläche ca. 125
qm. Hochwertige Dielenholzböden, die sichtbaren
Holzbalkendecken und das Sichtgebälk üben einen ganz
besonderen Charme aus und sorgen für ein einmaliges
Ambiente.
Das Objekt, genannt "Elisenhof" wurde 2005 - 2006
grundliegend saniert und renoviert. An dem stattlichen und
ortsprägenden Gebäude sind das für die (damalige) Zeit
typischen aufwändigen Holzzierwerk an den Dachrändern und
Gauben, sowie ein Erkervorbau mit reich verzierten Rosetten mit
der Aufschrift "ESSE Non VIDERI" hervorzuheben.
Auf der nachstehend genannten Homepage können Sie weitere
Infos einsehen:
https://www.fuhrmann-planen-bauen.de/referenzen/elisenhof/
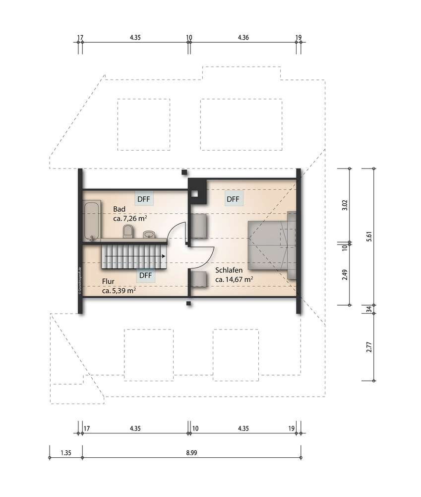
Die Wohnung befindet sich im OG und DG. Dank der Maisonette-
Bauweise erstreckt sich die Immobilie über 2 Ebenen - dies
verleiht der Wohnung ein besonderes und offenes Raumgefühl -
geradezu ideal! Im Eingangsbereich gibt es neben dem Gäste-
WC einen sehr praktischen Garderobenbereich und ein
Abstellraum.
Die große Küche mit Einbauten (im Kaufpreis enthalten) , ein
Kinderzimmer - das auch als Arbeitszimmer genutzt werden
kann- und der gemütliche Wohn- und Essbereich mit Balkon
befinden sich ebenfalls auf diesem Stockwerk. Über eine stilvolle
Holztreppe gelangen Sie zum Tageslichtbad und Schlafzimmer
im Dachgeschoss.
Das Highlight bzw. besonders attraktiv wird die Wohnung
dadurch, dass es nicht nur einen Balkon gibt, sondern Sie auch
im zugehörigen Park die frische Luft genießen können. Ein
notarieller Vertrag sichert eine Mitbenützung der großen und
tollen Parkanlage. Für das gemütliche Zusammensein (ab und zu)
hat die Hausgemeinschaft sogar Gartenmöbel/Bierbänke bereit.
Ein Schmuckstück in aller bester, bevorzugter Lage in Backnang
innerhalb der Parkanlage "Elisenhof". Hohe Lebensqualität mit
Nähe zu Stuttgart durch S Bahnlinien S3 und S4.
Die Murr-Metropole Backnang:
Ist eine geschichtsträchtige Kulturstadt, eine vielfältige
Schulstadt und eine kinderfreundliche Familienstadt. Sie ist also
eine Stadt mit großer Vergangenheit, aber auch eine solche mit
eine Stadt mit großer Vergangenheit, aber auch eine solche mit
viel versprechender Zukunft. Backnang lädt zum Entdecken ein,
kommen Sie und überzeugen Sie sich selbst. Als attraktives
Mittelzentrum im Herzen der Region Stuttgart bietet die Murr-
Metropole in landschaftlich reizvoller Umgebung eine
hervorragende Infrastruktur, hat exzellente schulische, kulturelle,
soziale und karitative Angebote von jung bis alt, ist als Sportstadt
stolze Heimat zahlreicher Leistungsträgerinnen und
Leistungsträger sowie Sitz mehrerer Weltmarktführer. In
Backnang lässt es sich hervorragend leben und arbeiten!
Medizinisches Angebot: BK verfügt über mehrere
Hausarztpraxen, Fachärzte (z.B. für Orthopädie, Innere Medizin,
Gynäkologie) sowie ein ambulantes OP-Zentrum. Das
Gesundheitszentrum Backnang bündelt viele dieser Angebote
unter einem Dach und sorgt für koordinierte Versorgung.
Hausärztliche Versorgung: Die Stadt hat eine gute Dichte an
Allgemeinmediziner:innen, was für die Grundversorgung wichtig
ist.
Verkehrsanbindung:
Bundesstraße 14 als Umgehungsstraße,
Zubringer zur Autobahn A81
Besondere Rolle als Bahnhofstandort durch dicht getaktete S
Bahn in Richtung Stuttgart sowohl über Marbach und
Ludwigsburg mit der S4, als auch direkt nach Stuttgart und
weiter zum Flughafen mit der S 3. In und um Backnang besteht
das engmaschige Netz des BK-Busses sowie der Regional Bus
Stuttgart GmbH.
Mehrere Buslinien und Bahnlinien sind nur ein paar Gehminuten
entfernt. In direkter Umgebung finden Sie mehrere Restaurants,
Supermärkte, Cafés, Ärzte und Bäckereien vor. Auch
Modegeschäfte, Bars, Fitnessstudios und Buchhandlungen
erreichen Sie.
Highlight ist die durch notarielle Dienstbarkeit gesicherte
Mitbenutzung der tollen Parkanlage "Elisenhof"!
Weitere Ausstattungsmerkmale:
-Geräumiger Wohn- und Essbereich mit vielseitigen
Gestaltungsmöglichkeiten und direktem Zugang zum Balkon
-Moderne, offene Einbauküche mit elektrischen Geräten
-Kellerabteil für zusätzlichen Stauraum
-Waschküche und Trockenraum
-Mitbenützung Gewölbekeller
-Fahrrad-Raum zur Mitbenutzung
-Tiefgaragen-Stellplatz
Dieses Schmuckstück müssen Sie gesehen haben. Gerne
vereinbaren wir einen Besichtigungstermin mit Ihnen.
Telefonat oder Anfragen per Email:
Bei Interesse senden Sie uns Bitte eine vollständig ausgefüllte
Kontaktanfrage über Immoscout zu oder schreiben Sie uns eine
Email (Adresse siehe Homepage) mit Ihren Kontaktdaten.
Die von uns gemachten Angaben beziehen sich auf die uns vom
Auftraggeber zur Verfügung gestellten Informationen und
Unterlagen und konnten nicht auf Vollständigkeit und Richtigkeit
überprüft werden, eine Haftung unserseits kann daher nicht
übernommen werden.
Energieausweis liegt bei Besichtigung vor.